 
			 
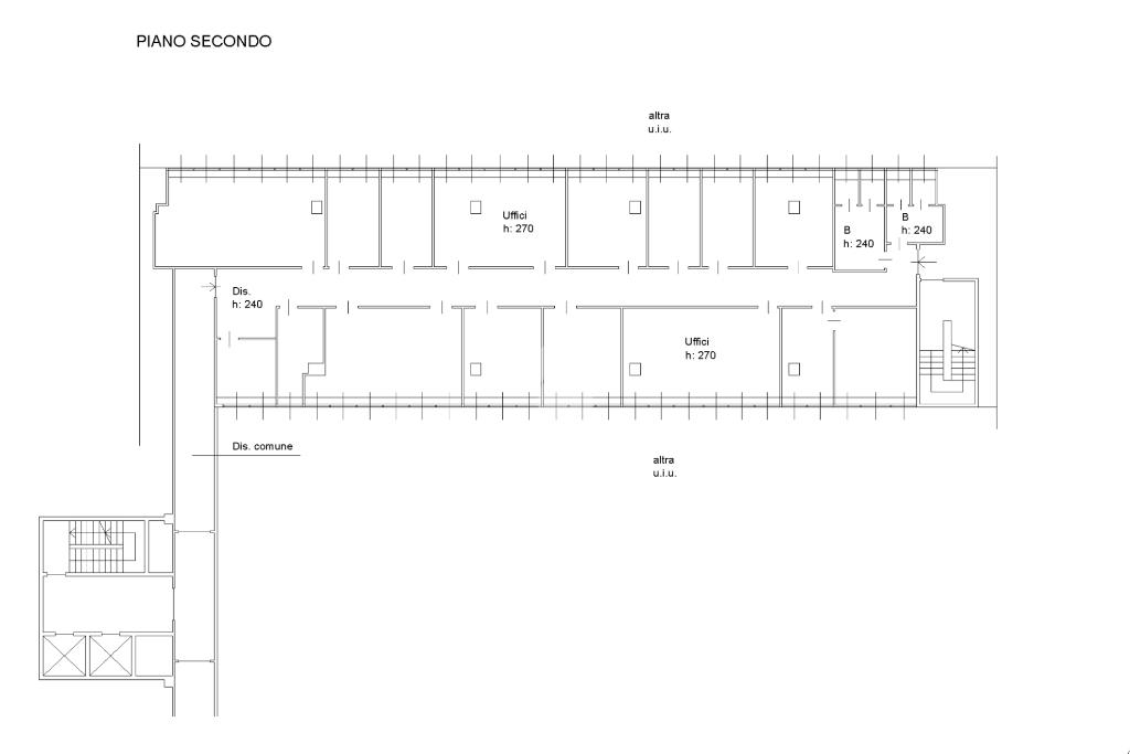
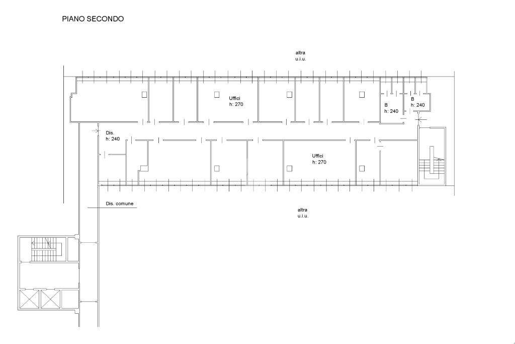
				In zona strategica e ottimamente servita, proponiamo in locazione ufficio di 458 mq situato al secondo piano di un centro direzionale in Via Anton echov 48, sopra il Centro Commerciale Bonola. 
L’area rappresenta un polo funzionale della zona nord-ovest di Milano grazie alla presenza di numerosi servizi utili alle attività professionali e aziendali: supermercati, ristorazione, banca, posta, farmacia, palestra, attività commerciali e servizi pubblici sono raggiungibili comodamente a piedi. 
L’ufficio è caratterizzato da ambienti flessibili e funzionali: una parte è strutturata in open space, mentre la restante è suddivisa tramite pareti mobili, facilmente riconfigurabili secondo le esigenze operative. L’immobile è dotato di area break/relax, due gruppi igienici interni e impianti di riscaldamento e raffrescamento centralizzati. 
Il centro direzionale è privo di barriere architettoniche e servito da tre ascensori, di cui uno montacarichi, che facilitano anche la movimentazione di materiali o attrezzature. 
Inclusi nel canone tre posti auto coperti, situati all’interno del complesso.
La posizione è comodamente raggiungibile sia con i mezzi pubblici che in auto: fermata Bonola della metropolitana M1 a breve distanza, collegamenti con autobus di superficie verso i principali quartieri della città e rapido accesso alla Tangenziale Ovest, A4 Torino–Venezia, A8 Milano–Varese e arterie principali direzione Milano centro. 
Ampia disponibilità di parcheggi pubblici nelle immediate vicinanze rende facilmente accessibile la sede a clienti, visitatori e personale.
Non perdere questa occasione! Per maggiori informazioni o fissare un appuntamento si prega di telefonare in agenzia all numero 0233490059 - 3480525184 .Ogni agenzia ha un proprio titolare ed è autonoma. Per appuntamenti i nostri incaricati sono disponibili dal lunedì al venerdì dalle 9:00 alle 13:00 e dalle 15:00 alle 19:30. Il sabato dalle 9:00 alle 12:30. A vostra disposizione uno staff di consulenza creditizia in grado di proporvi il mutuo più adatto alle vostre possibilità. Contattateci per fissare un incontro gratuito nei nostri uffici.
Ti interessa visionare l'immobile?