 
			 
				Situato in una delle aree più servite e comode di Milano, l’ufficio si trova in via Antonio Cechov 48, direttamente sopra il Centro Commerciale Bonola. La zona offre ogni tipo di servizio, dai negozi ai ristoranti, dalle banche alle palestre, oltre alla comodità della fermata MM1 Bonola raggiungibile a piedi e all’immediata vicinanza con l’imbocco autostradale, che assicura collegamenti rapidi con il centro città e con l’hinterland.
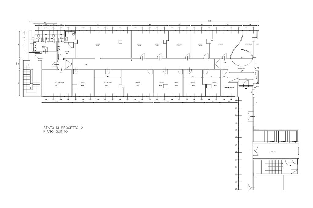
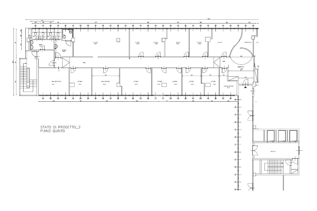
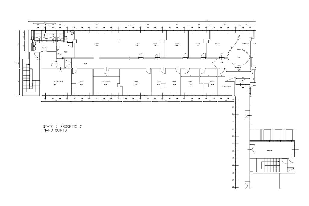
Al quinto ed ultimo piano di un centro direzionale, proponiamo in locazione un ufficio di 560 mq interamente ristrutturato: l’ingresso si apre su una grande e lussuosa reception, cuore rappresentativo dello spazio, da cui si sviluppano una stanza server e ambienti di diverse dimensioni, ideali da destinare a uffici, sale riunioni, zone ristoro o relax. L’immobile è servito da tre ascensori, accessibile alle persone con disabilità, e dispone di due gruppi servizi, uno dei quali già predisposto per utenti con esigenze specifiche. Nel canone annuo sono inclusi sei posti auto coperti, una soluzione pratica e vantaggiosa per chi raggiunge l’ufficio con mezzi propri. Si tratta di un’opportunità esclusiva per aziende che ricercano un ambiente elegante, funzionale e perfettamente collegato.
Non perdere questa occasione! Per maggiori informazioni o fissare un appuntamento si prega di telefonare in agenzia all numero 0233490059 - 3480525184 .Ogni agenzia ha un proprio titolare ed è autonoma. Per appuntamenti i nostri incaricati sono disponibili dal lunedì al venerdì dalle 9:00 alle 13:00 e dalle 15:00 alle 19:30. Il sabato dalle 9:00 alle 12:30. A vostra disposizione uno staff di consulenza creditizia in grado di proporvi il mutuo più adatto alle vostre possibilità. Contattateci per fissare un incontro gratuito nei nostri uffici.
Ti interessa visionare l'immobile?